Двухпозиционные клапаны могут работать в сочетании с комнатными термостатами компании «Данфосс» типа RET 230 (однополюсный переключатель) и программируемыми комнатными термостатами типа ТP5000/7000. Информацию о том, с какими еще термостатами работают клапаны данной серии.
Преимущества:| Ду | kvs, м3/ч | Присоединительная резьба, дюймы | Кодовый номер | |
| 230В | 24В | |||
| 15 | 17 | Rp ½ | 082G5418 | 082G5412 |
| 20 | 41 | Rp ¾ | 082G5419 | 082G5413 |
| 25 | 70 | Rp1 | 082G5420 | 082G5414 |
| 32 | 121 | Rp1¼ | 082G5421 | 082G5415 |
| Питающее напряжение | 24В или 230В перем. тока |
| Потребляемая мощность, ВА | 3,5 (<0,2 Вт в режиме ожидания) |
| Частота тока, Гц | 50/60 |
| Скорость вращения, сек/90° | 30, 60 |
| Сигнал управления | двухпозиционный |
| Крутящий момент, Нм | 50, 10 |
| Угол поворота, ° | 90 |
| Концевой выключатель | регулируемый 0-90° |
| Максимальная температура регулируемой среды, °С | 110 |
| Рабочая температура окружающей среды, °C | От 0 до + 50 |
| Относительная влажность окружающей среды, % | 0-95, без выпадения конденсата |
| Температура транспортировки и хранения, °C | От −10 до +80 |
| Класс электрической защиты | II в соответствии с EN 60730-1 |
| Класс защиты корпуса | IP42 в соответствии с EN 60529 |
| Масса*, г | AMZ 112: 728 |
| AMZ 113: 906 | |
| Цвет/ материал | темно-серый/поликарбонат |
| — маркировка соответствия стандартам |
Директива 2006/95/EC Низковольтное оборудование EMC 2004/108/EC RoHS II: 2011/65/EС EN 60730-1 EN 60730-2-14 |
| Ду | 15 | 20 | 25 | 32 |
| Условное давление, Ру | 40 | |||
| Пропускная способность, kvs | 17 | 41 | 70 | 121 |
| Температура регулируемой среды, °С | -20...130 | |||
| Регулируемая среда | Питьевая вода, вода или водный раствор гликоля с концентрацией до 50%, воздух, неагрессивные жидкости | |||
| Присоединительная часть клапана | по стандарту ISO 5211 | |||
| Присоединения | Внутренняя резьба Rp ISO 7/1 | |||
| Сертификаты и стандарты | CE-PED-CSA-GOST | |||
| Материалы | ||||
| Корпус | латунь марки CW617N по EN12165 | |||
| Шар, шток | латунь марки CW614N по EN12164 | |||
| Уплотнения | PTFE | |||
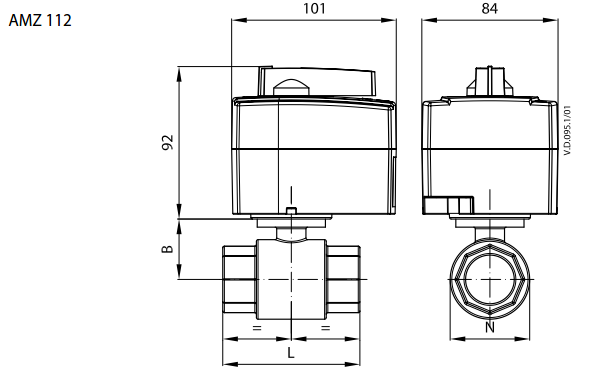
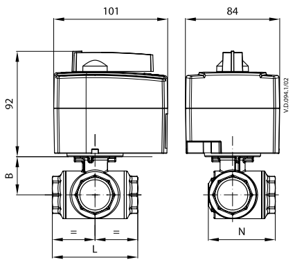
Клапаны регулирующие Danfoss — отличный выбор для современных систем отопления, климатизации и подачи воды разных температур. Двухпозиционный кран AMZ 112 с приводом прост в установке и управлении, его функциональность ограничена двумя позициями: закрыто и открыто.
Для управления могут использоваться комнатные термостаты RET 230 и TP, а также переключатели SPST и SPDT.
Как и другие клапаны регулирующие двухпозиционный кран AMZ 112 имеет несколько модификаций с Ду от 15 до 32 мм и пропускной способностью от 17 до 123 кубометров.




