|
Материал корпуса/ body material |
A | ||||
| Исполнение / type | 31 (DN 10-20) | 31 (DN 25-50) | 41 (DN 10-20) | 41 (DN 25-50) | |
| 1 | Корпус / body | EN – GJL-250 JL1040 | |||
| 2 | Крышка / bonnet | EN – GJL-250 JL1040 | |||
| 3 | Клапан / disc | X20Cr13 1.4021 | |||
| 4 | Шток / stem | ---------- | X20Cr13 1.4021 | ---------- | X20Cr13 1.4021 |
| 5 | Пружина / spring | X17CrNi16-2 1.4057 | ---------- | ||
| 6 | Кольцо клапана / seat ring | X12Cr13 1.4006 | |||
| 7 | Прокладка / gasket | Карбоамидный каучук / carbamide-caoutchouc | |||
| Макс. температура / max. temperature 200oC | |||||
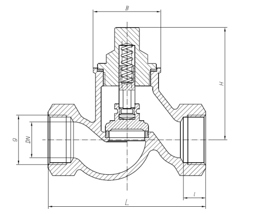
| DN | G | L | I | H | B | |
| Мм | Мм | Кг | ||||
| 10 | 3/8” | 85 | 12 | 53 | 36 | 0,4 |
| 15 | 1/2” | 90 | 14 | 56 | 41 | 0.7 |
| 20 | 3/4” | 100 | 16 | 56 | 41 | 0,9 |
| 25 | 1” | 120 | 18 | 82 | 50 | 1,2 |
| 32 | 1 1/4” | 140 | 20 | 99 | 60 | 1,7 |
| 40 | 1 1/2” | 170 | 22 | 112 | 68 | 2,2 |
| 50 | 2” | 200 | 24 | 121 | 84 | 3,6 |
Обратные клапаны Zetkama 277A подъемные — это модели защитной трубопроводной арматуры прямого действия с автоматическим режимом работы, которые предотвращают возможность движения потоков промышленной воды, гликолевых составов, пара, воздуха в обратном направлении в горизонтальном трубопроводе, насосе, сосуде под давлением.
Обратные клапаны отличаются резьбовыми присоединениями DIN 2999. Они имеют небольшие размеры и высокую степень прилегания, для них не требуется дополнительное обслуживание.
При производстве корпуса применен серый чугун.
Рабочая температура — +200 °С.
Условное давление — 16 бар.
Этот сайт использует cookies для улучшения работы. Подробнее в {https://www.buildeng.ru/agreement/politika-obrabotki-personalnykh-dannykh.php}.




